发布者:蓝海盛饰 发布时间:2021-05-10 阅读:
以实用性的角度来定位新房空间,算是比较普遍的情况了,几乎每个人在装修时都会考虑。毕竟生活是很平淡的,再华丽的空间表现,也无法抵挡时间的消磨。本期给大家带来的这套案例,也是以实用性来定位的。不过相较于我们常见的设计手法,屋主的这套新房,在空间布局上,却将空间给利用到了极致,以至于在完善基本生活功能的前提下,还实现了多种不可能。真的是既惊喜又意外,非常值得大家来参考。

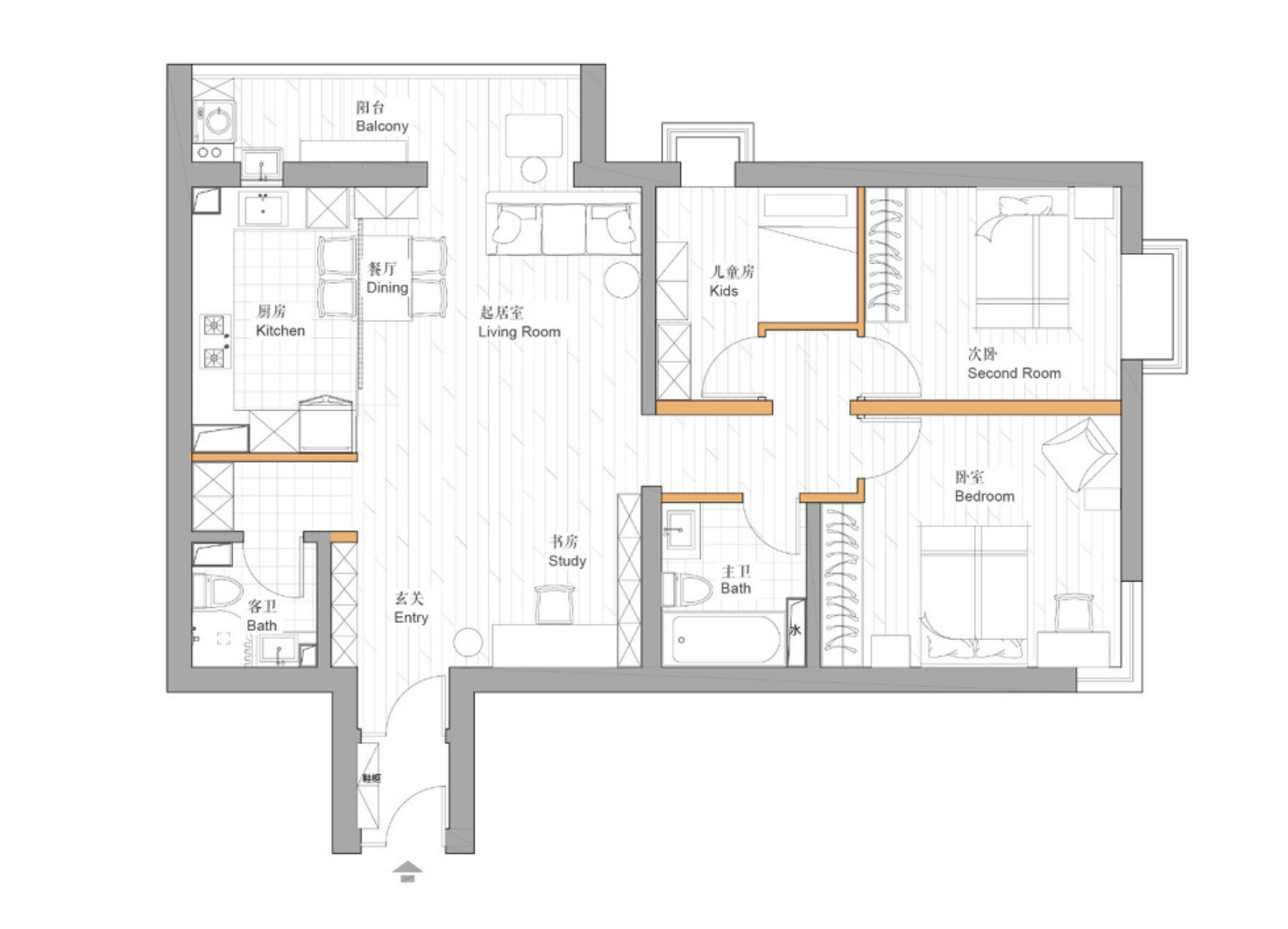
新房建筑面积106㎡,原户型为两室两厅两卫的格局,屋主一家属于三代同堂的成员结构。因此,在空间需求上,不仅要实现两居改三居的功能,并且还要规划出一块办公区及藏书区。同时,考虑到孩子还比较小,需要有一定的空间满足玩耍亲子。当然,在家里的人多的情况下,基本的储物空间规划,也是不能忽视的。

结合屋主的需求,空间布局如下。
1、直接将厨房打开,并使用餐桌做隔断,这样既满足了日常就餐需求,也与客厅形成了一体化结构,从而体现出空间的社交属性,方便亲子及互动。
2、原餐厅则是作为书房来使用的,并且为了保证空间的通透性,还放弃了封闭式结构。
3、原主卧与衣帽间打通,重新布局,分别作为儿童房及次卧来使用,以实现三居室功能。
4、原次卧则是作为主卧来使用的,而在两个卫生间的处理上,则都是作为公卫来使用的,以最大化提高空间的使用率,让生活更加便捷。

玄关区的设计比较常规,借用墙体内陷空间,配置一组入墙式储物柜,可以满足全家人的入户收纳需求。同时,为了保证墙体的工整性,以及视觉上更显干净、利落感,柜门还采用了平板无拉手结构来处理。有一点要特别提一下,由于门外有一块空间可利用,所以也配置了一组鞋柜,从而解决日常鞋子的收纳需求。

储物柜整体分成两组来设计,可以实现分类收纳,以提高柜体的收纳率。而旁边的格栅移门,则起到了遮挡卫生间的作用,从而让空间更加私密。当然,该移门本身的装饰性也不差,并呼应了空间中的原木元素。

将原餐厅改成书房,还是挺让人意外的,不过也恰恰是实用性的体现,解决了屋主的办公需求。同时,为了保留原客餐厅的通透性,还采用了开放式来布局。这样一来加深了空间的社交属性,二来也凸显出了空间的灵动性,看起来十分宽敞。

书桌与书柜,则是以转角的结构来设计的,这样既能充分利用空间,也能起到节省空间的作用。而开合结构的柜体设计,也让书柜做到了藏露有度。

当厨房墙体打开后,打破传统的客厅布局,采用LDK一体化来设计,既满足了多种生活功能性,也为空间预留下了更多的可能性。比如给地面铺上一块地毯,可以直接当作亲子区来使用,满足孩子爱玩的天性;再比如配置两个豆袋,立马又延伸出一块休闲角落,方便全家人交流互动。

客厅侧面的墙,使用灰色的水泥板来装饰,既与书房墙面做到了连接,又为空间赋予了沉静、硬朗的氛围。同时,视觉层次表现也更加丰富了。而取消电视机,选择用投影来代替,则又让空间更加灵活了,且视觉体验也不差。

餐桌则是以隔断的方式设计在了厨房门洞处,虽说看起来有一点拥挤,但由于厨房墙体完全打开了,所以实际上并没有什么影响。况且,灵动的布局,也方便后期随时做调整。

开放式厨房以U形橱柜来布局,将空间充分利用,并做到了动线合理。而将大冰箱内嵌到柜体内,也减轻了体量,让空间看起来更加开阔、宽敞。

主卧设计比较简单,空间以白调为主,再搭配上草绿及灰色元素,在简约中又不失清新、沉稳的气质,从而让屋主夫妇拥有更好的睡眠氛围。而侧面一组到顶的大衣柜配置,则满足了日常的收纳需求。


次卧为老人房,床头墙面刷上绿色墙漆,不仅赋予了清新的基调,也与主卧有了呼应。考虑到老人有很多物品,将部分衣柜做成开放式隔层,并利用收纳盒来整理,也让空间保证了整洁与干净。


儿童房设计深得孩子喜爱,放弃传统的床,选择高架床来布局,既满足了日常休息,也预留出了舒适的玩耍区。而侧面的儿童家具配置,则可以从小培养孩子的动手能力。

阳台的设计也体现出了实用性,比如杂物柜设计,多功能花架设计,都很好地利用了空间。同时,又不失休闲感。
本期案例就分享到这里,不得不说屋主家的空间布局很巧妙,在面积只有106㎡的情况下,不仅满足了一家五口人的居住需求,还保留下了通透的空间体验。同时,大量储物空间的规划,也完美诠释了实用性。
