发布者:蓝海盛饰 发布时间:2020-12-08 阅读:
在这套118平米的房子装修中,空间整体以现代简约的大方格调,通过在家居与细节处加入端庄的中式元素,呈现出一种简洁大方而自然的禅意与雅韵,在这个静雅轻松的空间下,结合质朴端庄的中式气质,给人以安静从容的惬意感。
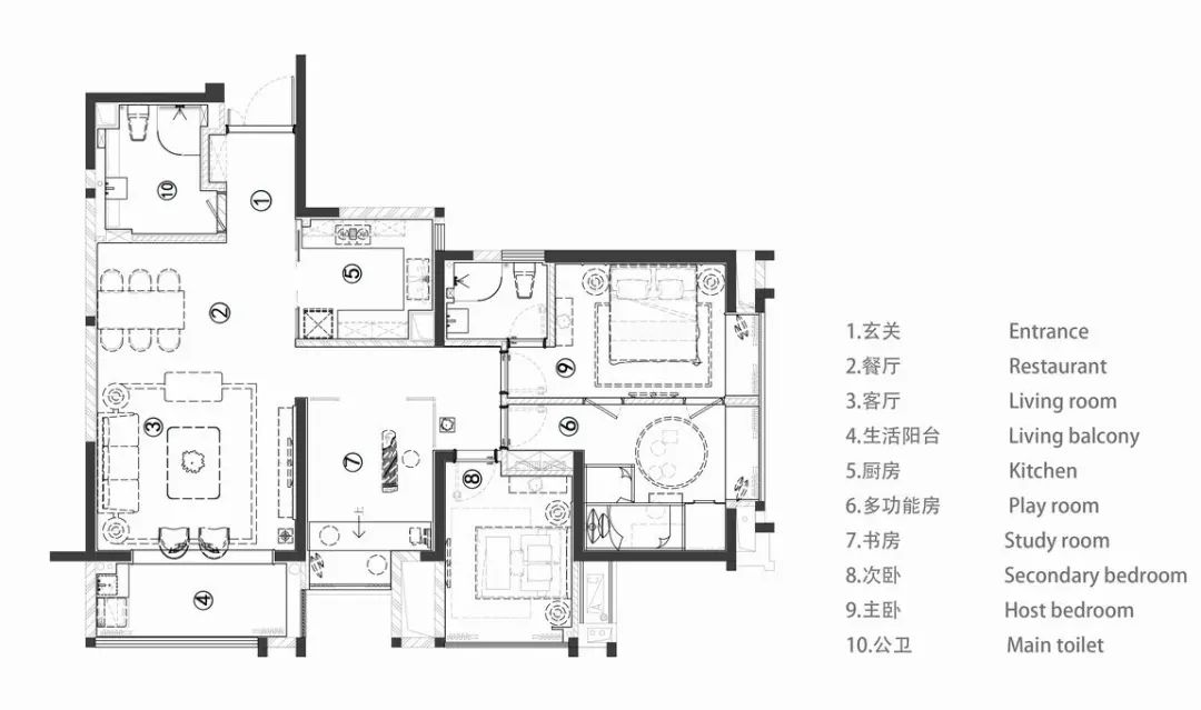
平面布置图

客厅
一日之计在于晨,朝露伴随着阳光一起迎接新的生活。同时加入素雅的室内墙体、大理石地板的铺设,多处的植物装饰进行点缀,让中式古典装修风格的传统意蕴从细节上凸显主人生活的典雅与高贵。

▲在这个新中式的客厅,罕见地在新中式风格空间里采取了无主灯的设计,电视墙加入大理石背景墙的设计,布置上深木色的电视柜,布置花瓶与装饰画,带来一种现代高级的端庄与优雅感。

▲灰色硬包背景的沙发墙,挂一幅横幅装饰画,搭配整体中式元素的家具与细节,也显得简约舒适而大气。

▲边几上布置中式小鸟笼与盆景,上方一盏吊灯设计,也让空间充满端庄精致的儒雅气质。



▲朴素的布艺沙发,布置上中式盆景、茶盘、抱枕与凳子等细节,在简约舒适的空间下,铺叙出一种端庄高级的中式雅韵感。

▲靠窗位置布置一张休闲沙发与小茶几,也提供了一个惬意轻松的休闲一隅。
餐厅

▲餐桌连贯着客厅空间,餐厅背景墙一幅圆形的挂画,结合餐桌上方一排气球状的玻璃灯泡,也使得用餐空间更加温情华丽而高级精致。

▲“民以食为天”,中式设计中,餐厅与餐桌的布置设计,是一种家的温馨的象征,石材餐桌+实木架的布艺餐椅,餐桌上布置精致的餐具与花瓶,花瓶插上丹红的插花,让用餐氛围温馨而又成熟端庄。


▲诗意情趣的挂画,餐桌上精致的餐具杯具,也让用餐氛围更加儒雅气质。
茶室

▲独立的茶室空间,为主人提供一个品茶的空间,三五好友,在闲暇时光聚在这个小空间,休闲聊天,惬意自然。


▲中式的摆件布置,也让空间更加有中式风的气韵。
卧室


▲卧室床头墙以镜面与屏风造型,中间是一幅竹林图案的墙画,布置端庄的床铺,加入中式质感的床单,顶上一张华贵的中式吊灯,让卧室空间从容而温情。


▲吊顶加入辅助光源,整体简洁的墙面,加入黑色的门套门框,带空间充满成熟端庄的高级感。斗柜上的小亭与盆景装饰,也让卧室显得更有中式独有的高级气质。
次卧

▲次卧在浅灰色硬包床头墙的基础,挂一幅中式雅韵的横幅装饰画,布置上温雅舒适的布艺靠背床,中式素雅的床单摆饰,床头两侧对称的台灯布置,也让睡眠空间更加端庄舒适。


▲细节软装方面,也是充斥着中式风格独有的诗意与情趣,让空间更加高级端庄。
卫生间

▲卫生间洗手盆两侧都是悬空的台面,黑色洗手盆+白色台盆搭配,结合圆形的背光镜子,也让卫浴空间更加时尚而简洁高级。
