发布者:蓝海盛饰 发布时间:2021-11-22 阅读:
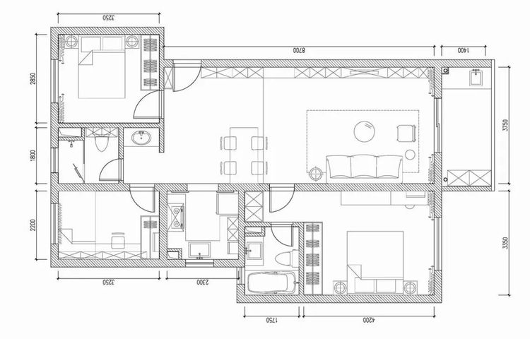
平面布置图

客 厅

电视内置于收纳型的电视墙上,而沙发墙仅挂了一幅简约纹理的装饰画,顶上一排的射灯,配合原木色的木地板,奠定了简洁利落的硬装基础。

水墨蓝的沙发上摆有灰、蓝和棕黄色的抱枕,视觉上增加层次和跳跃性,配合茶镜台面的茶几,呈现以简单端庄的效果。




餐 厅

电视墙干净利落的墙面顺延到餐边柜,同时以开放的收纳作为装饰,展露业主品味之余也提升了用餐的格调。



主 卧

软包床头墙,结合一个舒适的软质床头靠背,提供了一个舒适温馨的就寝环境。

主卧端庄得体的布置,配合对称的布局还有灯光系统的烘托,给人以简雅大方的既视感。






儿童房

儿童房张贴格子壁纸,同时用灰色乳胶漆划分出床铺的位置,配合灰色+白色的家具,显得自然统一又简单大方。



次 卧

素净的床头墙,配合素雅的床铺,干净清爽的视觉让人身心舒畅。


