发布者:蓝海盛饰 发布时间:2021-04-02 阅读:
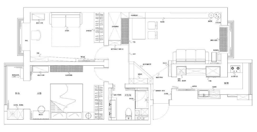
今天蓝海盛饰要分享的是一套80㎡小户型公寓改造案例,全屋以开阔通透为主,留出更多的活动空间。设计师利用点、线、面等几何图案勾勒层次感,提升整体视觉效果,也能给家带来硬朗气息。

色彩上以白色为主,能在视觉上加深开阔通透性。细节上用蓝色、绿色、黄色等明亮色做点缀,突出层次感。材质选择比较多元,款式大方,所以也能完美融进空间。

▲改造前后的对比,玄关鞋柜全部拆掉重做,将厨房的门藏在其中。

玄关结合空间独有的错层,做了L形的收纳柜,满足收纳需求。顶面与墙面用蓝色做区域划分,也更加有立体感。

定制柜的另一侧,留空的地方可以放些随手小物品,还做了多层抽屉,可以满足不同物品的收纳需求。

花砖、浅木纹地板、深木纹地板分别用于玄关、餐厅及楼梯,功能区的分割自然明显。

根据吊顶形状安装灯带,从远处看,是一幅远山的景象。

▲改造前的客厅区域,没有足够的储物空间,非常凌乱。

客厅空间除了沙发没再摆放多余椅子,留出充足的活动空间。靠窗做了卡座柜,不仅用来收纳,还能坐在上面看书。


电视背景墙没有做过多设计,保持最简单的样子。黑色轨道灯可随意调节光源,配上大荧幕,在家也能有绝佳的观影体验。角落里抽象的彩色画成为一抹亮眼的点缀。

客餐厅看似合为一体,却用蓝色墙面区分开两个空间。靠墙打造了卡座,可以容纳更多人用餐。

蓝色墙面前的柜子可以用作餐边柜,上方有置物台和抽屉,用来放些日常物品,方便拿取。

走道以白色为主,最右边展示架的黄色带给纯白空间活泼与明媚。楼梯与一旁的卡座衔接都选择长虹玻璃,提升整体通透性,也能让空间隔而不断,彼此衔接。

展示柜由三个部分组成,顶部搁板、中间抽屉、底部柜子。上层展示、中间储物,底部放猫砂或者是水盆。

▲改造前后的厨房对比照

厨房两侧用来收纳家电和洗菜区,尽头用作烹饪区,光线充足,通风方便。橱柜尺寸经过精心推算,预留出大小合适的通道。


厨房设备齐全,蒸箱烤箱冰箱全部都嵌入到定制柜之中,还充分利用了墙面的空间进行收纳,东西虽多,却整洁有序。

卧室的布局上保持干净明亮,色调也以干净为主,只用少量彩色点缀空间格调。

在梳妆台的位置着重处理,墙面定制墨绿色金属管和竖条灯,高雅复古又精致。

次卧暂时用做客房和书房,不过布局上还是以未来的儿童房为模板,成品家具也方便以后改造。黑色漆面单人床,搭配床头灯和挂衣架,线条感和帅气兼备。

入门墙上整合书柜、黑板墙和暖气片,并在黑板墙的位置结合灯光做了一轮弯月,未来用作儿童房使用时,留给小朋友一个有趣的世界。


卫生间用镜柜+浴室柜来做收纳,为了方便存放物品和使用插座,用木色区分出开放式收纳格。色彩上与柜体的绿色和谐混搭,功能上与柜子组合。

淋浴区用磨砂玻璃隔开,保证通透性和隐私性。侧面的墙体上制作壁龛用来储物,可以放置浴球、沐浴露等杂物。

