发布者:蓝海盛饰 发布时间:2021-07-27 阅读:
在这套97平米的房子中,整体空间以现代北欧风格的设计,布置上简约舒适的家具软装,以绿植装饰点缀,为独立自主的女生提供了一个自然轻松的生活空间。
玄关

▲玄关布置一个小矮柜,柜台上摆上装饰画,墙身上还有壁灯与圆形的装饰,一旁放置一盆橡皮树,一进门就是一个文艺精致的空间,带来一种清新优雅的氛围体验。
客厅


▲客厅地面是鱼骨铺的木地板,以简约的空间营造出惬意自然的氛围,布置北欧范的家具,带来一个休闲从容的生活体验。

▲没用电视柜的电视墙刷成灰色的墙面,中间壁挂安装电视机,两侧加入蓝色的入墙式收纳展示柜,蓝色柜体是底部带门+顶部开放的设计,摆上白色陶艺品与书籍,也让空间显得洁净而又自然。


▲圆形茶几以金属+石材质感的双拼组合,搭配一张绿色休闲椅,角落位置的绿植盆栽点缀,也让整个空间显得文艺优雅而清新精致。

▲沙发茶几区域铺上白色带灰纹的地毯,灰色沙发墙基础布置一张灰色布艺沙发,两侧加入绿植与展示架的装饰,也让空间显得清新优雅而活力高级。

▲隐形踢脚线加入了暗藏灯带的设计,也让空间显得更加自然舒适而有趣。
餐厅


▲餐厅与客厅连一起的空间格局,风格统一而大气。


▲餐厅在简洁灰色的墙面基础,装上一面镜子谷仓门,搭配原木餐桌椅组合,带来一个灵活轻松的用餐氛围。谷仓门挡住了电箱,同时也可以照亮空间,并为玄关提供一个整理仪容的全身镜功能。

▲餐厅另一侧墙面是厨房的玻璃门,并把卫生间的洗手盆外置在过道位置,过道地面是青色的花砖,整体空间设计显得实用精致而文艺。
厨房

▲厨房地面也是青色的几何图案花砖为基础,装饰简洁的白色橱柜,实用宽松的操作台,也让做饭更加轻松舒适而顺手。
卧室

▲卧室墙面在浅灰色的基础,床头墙上装上一个蓝色的靠背,上方黑色的线管基础,在床头两侧垂下球形吊灯,为空间带来一种小资优雅的文艺体验。


▲灰白配的床单,在蓝色靠背与黑色床头柜的搭配下,也带来一种安静优雅的端庄氛围感。


▲床尾定制简洁的衣柜,墙面挂一幅装饰画,靠窗位置摆一张绿色皮艺休闲沙发椅,也让生活显得更加低调端庄而舒适。

▲床侧边摆一个衣帽架、一张棕色皮凳,衣帽间上可以挂靠衣物,提供方便的临时收纳体验。
父母房
▲父母房也是以灰色的墙面,布置实木床与梳妆台,床头墙挂一幅月兔装饰画,布置灰白配的床单与窗帘,也父母房显得简洁明亮而轻松自然。

▲木质梳妆台旁边的是衣柜,大面积的衣柜,也为储物提供了方便。
书房

▲书房在木地板、木质百叶帘与木质书桌椅的搭配下,结合绿植盆栽的点缀,营造出一种自然清新的空间氛围。

▲书桌前的墙面挂一幅紫色装饰画,光线透过百叶帘进入空间,结合台面上的花瓶与装饰画,为主人营造出一个简雅舒适的工作氛围。
卫生间

▲卫生间洗手盆在过道区域,台下台上都装着实用的储物柜,为卫浴用品收纳提供保障,使得空间更加简洁美观。
阳台

▲阳台封起来装上纱帘,同时也是与厨卫空间一样的几何图案花砖,洗衣机+洗手盆柜组合的设计,带来一个实用而文艺的空间体验。
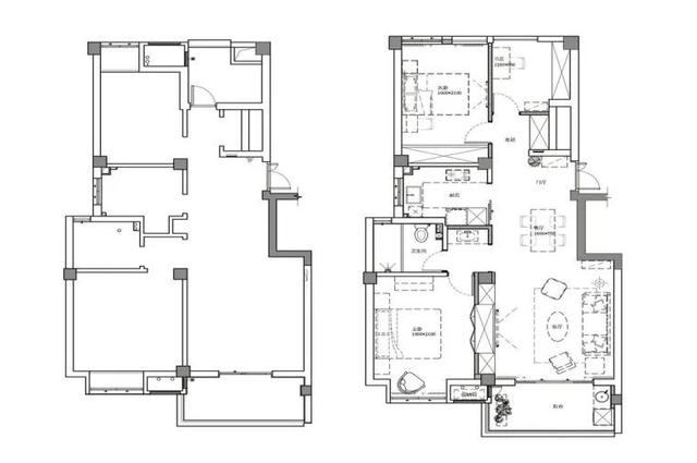
平面布置图

