发布者:蓝海盛饰 发布时间:2020-11-08 阅读:
生活或许是一首歌,具有那么优美的旋律;生活或许是一幅画,五彩斑斓充满希望,在这里生活是一种有情趣的生活姿态。调动现代主义的设计语言,通过纯净,简洁的空间规划与色彩运用,展现出当代语境下的审美情趣!
本期案例业主是一个幸福快乐的三口之家,都热爱运动。对于家居的要求,要体现出阳光热情、多姿多彩氛围。装修完工后效果达到预期!
原始结构图

原有结构格局入户中间开门,2个长条形的空间分别是客餐厅和卧室,功能定位明确。
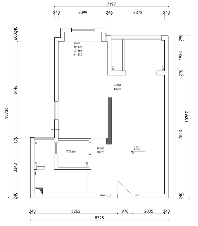
平面布置图

根据原有户型结构做简单的升级改造,卫生间采用干湿分离,并拆除原有卫生间窗户,从此处进入工作阳台。改造后厨房的空间更完整,增加了储物空间。整个空间布局紧凑,却井井有条。
玄关

入户门就是玄关,将美观与实用做到极致,换鞋凳和挂衣钩设置在同一边,对面的白色置物柜中间壁龛造型,方便放置钥匙等小件物品。通过厨房的玻璃移门看到美味,同时给走道补光,让人一进家门,就开始享受幸福与美好。
餐厅

餐厅背景墙采用木地板上墙,是北欧的装饰元素,近几年非常流行。小鹿角装饰品下方是一组高矮不同的收纳柜,放置餐厅用具,柜子上方的工艺品给空间营造了温馨气氛。

天花采用射灯和小吊灯,一家人在浓浓的暖意中就餐,普通饭菜也美味十足。
吧台

餐厅与客厅之间设置小吧台,黑色铁艺高脚凳、白色文化砖和蓝色柜子、3个色彩丰富的吊灯,搭配局部原木色饰面,颇具小情调。


从空间上来说,无形中划分了功能区域,与天花的造型也形成呼应,而且并不阻碍家人之间顺畅的情感交流。
客厅

客厅靠近阳台,作为常呆空间,独享充足自然光线。米黄色沙发背景墙,搭配暖色调的家具,营造的暖意让人感受到家的轻松与舒适,也是一种积极向上的生活态度。


一幅抽象装饰画提升了空间更多的艺术氛围,彰显出业主对精致生活的追求。


客厅电视背景墙选用灰色美岩水泥板,与沙发呼应,让人处于暖色调的空间中冷静下来,带来了自然清爽的感觉,也让空间更显简约、干净。

墙上的圆形挂钟在一群白色小鸟的拥簇下,充满动感。
主卧

主卧是私密性的睡眠空间,不做过多的装饰,墙面仅刷浅灰色乳胶漆,原木色家具搭配其他个性软饰,简约低调中感受到自然质感,宽大的飘窗延伸了视觉,不管是看书还是喝杯咖啡,都能营造“静”和“密”的氛围感。


次卧以榻榻米床和柜子组成,大大增加了收纳空间,在阳光的呵护下,享受快乐的生活和学习。
厨房

厨房的材质采用灰色墙地砖,上白下黑的橱柜,黑白灰的空间带来朴实的质感,尽显低调内敛的优雅。
阳台

阳台地面贴木纹长条砖,白色小块砖上装饰小绿植,下方安装的挂包,与山地车组成一幅美好的画面。
